×
  • There are no suggestions because the search field is empty.

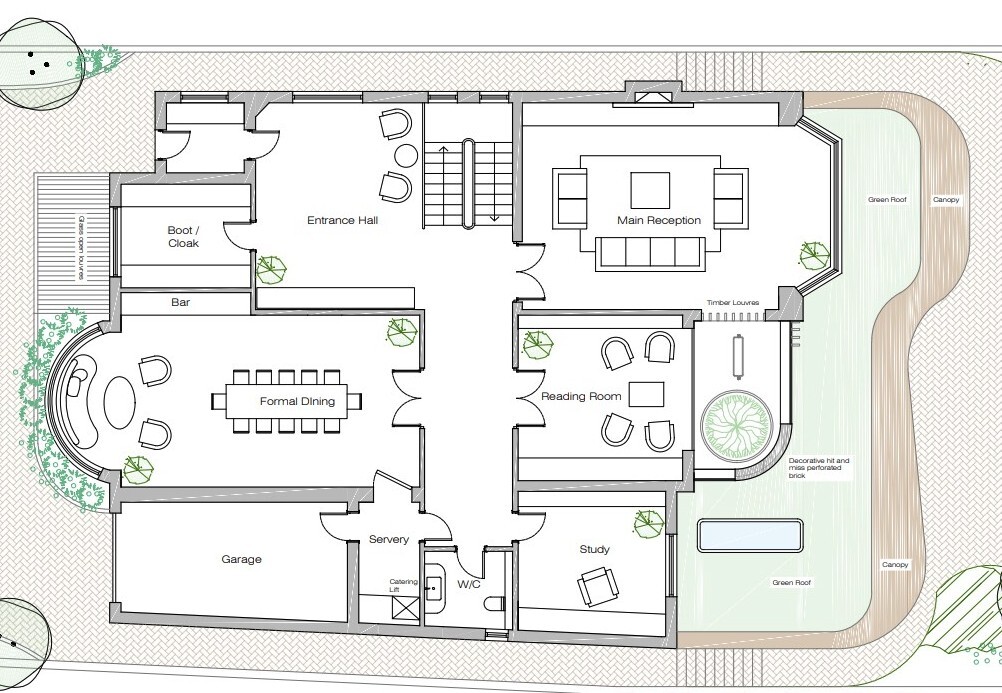
Redington Road

This Hampstead residence which was developed as part of a feasibility study for Savills and Knight Frank was conceived with neuroarchitecture and biophilic design principles at its core.

The proposal embraces organic forms and gently curved walls, introducing a natural softness that creates a calm, intuitive spatial flow. Expansive floor-to-ceiling glazing invites abundant natural light into the home, enhancing wellbeing while visually extending the interior into its surroundings.

At the heart of the design sits an internal courtyard, centred around a single sculptural tree, providing year-round greenery and a moment of quiet refuge. A green roof planted with wildflowers further amplifies the home’s connection to nature, supporting both environmental performance and a restorative sensory experience.

Overall, the scheme positions nature as an active architectural element—promoting comfort, tranquillity, and a deeply human-centred living environment.